Via Ree Pentite 39, 94100, Enna
Italia
Partita IVA 01106000860
Copyright 2018 © Sebastiano Fazzi Atelier di Architettura. All Rights Reserved.
Dettagli del progetto
Progetto: Atelier di Architettura
Luogo: Enna
Anno: 2007
Committente: Privato
Tipologia: Progettazione e arredamento d'interni / Arredamento
Foto: © Andrea Patrinicola
Immagini: © Sebastiano Fazzi Atelier di Architettura

Info
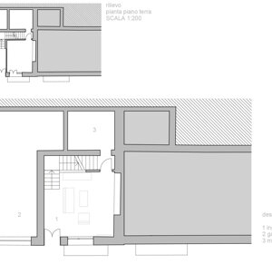
La trasformazione di un’unità commerciale, con annessi magazzini e spazi abitativi minimi, in abitazione per una famiglia composta da quattro persone, ci ha offerto l’occasione del progetto, insuperabile opportunità di approfondimento e di sperimentazione della disciplina architettonica. Le logiche del progetto, supportate dalle fondamentali operazioni del rilevare, tengono conto della condizione dello stato di fatto, delle richieste del committente che determinano il programma funzionale, delle tecniche costruttive e delle gerarchie compositive dello spazio. L’edificio, in muratura portante, è un tassello della fitta cortina di case che formano il centro storico di Enna.
Gli spazi da destinare all’abitazione occupano due dei tre livelli di cui è composto l’edificio, piano terra e primo piano, e sono illuminati da esistenti aperture dal lato ovest mentre dalla parte opposta si appoggiano ad un costone roccioso. Le esigenze della committenza prevedono la realizzazione di un salone, una cucina/pranzo, due camere da letto, due bagni ed una stireria, spazi che devono accogliere l’arredo utilizzato in una precedente abitazione.
La soluzione progettuale fa dell’esistente scala l’elemento cardine dello spazio: da oggetto chiuso e separato si trasforma in connettore spaziale e visuale. L’eccezione materica e la spazialità che si dilata creano, ad un tempo, la sorpresa e la scena della quotidiana domesticità. La parte pubblica della casa, costituita dal salone/ingresso al piano terra e dalla cucina pranzo al primo piano, è separata dalla parte privata delle camere da un disimpegno in cui lo spazio diventa compresso e la luce più tenue.
Il risultato è che lo spazio domestico è desunto dall’ascolto delle esigenze reali e reso unico dallo studio della funzione generale e della misura particolare.
The transformation of a business unit, with adjoining warehouses and minimum living spaces, into a house for a family of four people, has offered us the opportunity of the project, unsurpassable opportunity for architectural experimentation. The logics of the project, supported by the fundamental operations of surveying, take into account the condition of the actual state, the requests of the client who determine the functional program, the construction techniques and the compositional hierarchies of the space. The building, in masonry, is a piece of thick curtain of houses that form the old town centre of Enna.
The house occupy two of the three levels of which the building is composed, ground floor and first floor, and are illuminated by existing openings on the west side, while on the opposite side they rest on a rocky ridge. The needs of the client include the creation of a living room, a kitchen / dining room, two bedrooms, two bathrooms and an ironing room, spaces that must accommodate the furniture used in a previous home.
The design solution makes the existent staircase the key element of the space: from a closed and separated object it becomes a spatial and visual connector. The material exception and the expansive spatiality create, at the same time, the surprise and the scene of everyday domesticity. The public part of the house, consisting of the living room / entrance on the ground floor and the kitchen / dining room on the first floor, is separated from the private part of the rooms by a hallway where space becomes compressed and softer light.
The domestic space derives from listening to real needs and made unique by the study of the general function and of the particular measure.
Via Ree Pentite 39, 94100, Enna
Italia
Partita IVA 01106000860
Copyright 2018 © Sebastiano Fazzi Atelier di Architettura. All Rights Reserved.